





2 Bedrooms 1 Bathroom 1 Reception
Flat/Apartment - Freehold
7 Photos
South Shields
OFFERED WITH A NO ONWARD CHAIN AND BENEFITING FROM A FREEHOLD TENURE, THIS TWO BEDROOM GROUND FLOOR FLAT PRESENTS AN EXCELLENT OPPORTUNITY FOR BUYERS LOOKING TO PUT THEIR OWN STAMP ON A PROPERTY. THE FLAT REQUIRES MODERNISATION THROUGHOUT, MAKING IT AN IDEAL PURCHASE FOR INVESTORS, FIRST TIME BUYERS OR ANYONE SEEKING A PROJECT WITH GREAT POTENTIAL. SITUATED IN A CONVENIENT LOCATION, THE PROPERTY IS WITHIN EASY REACH OF LOCAL SHOPS, LIDL SUPERMARKET, GOOD TRANSPORT LINKS INCLUDING A NEARBY METRO STATION AND ROAD CONNECTIONS VIA THE TYNE TUNNEL. EXTERNALLY THE PROPERTY HAS A SEPARATED REAR YARD.
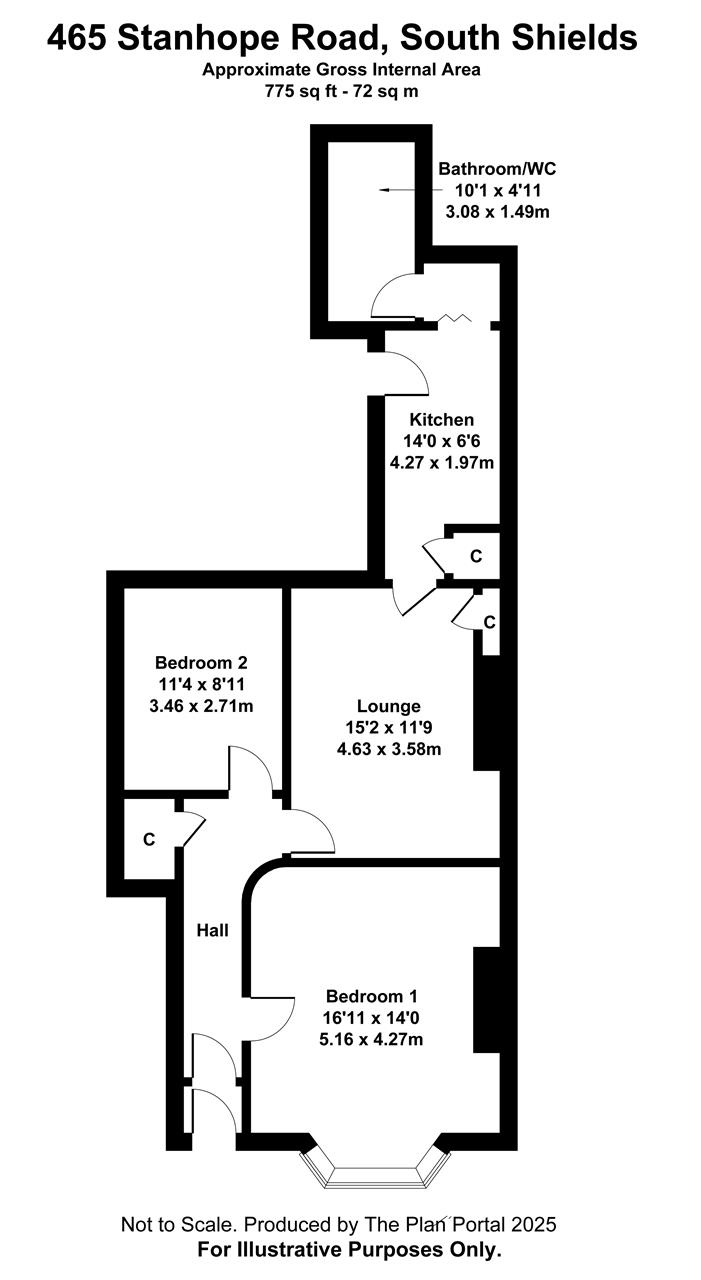
ENTRANCE LOBBY/HALL
Upvc double glazed front door, glazed door opening into the hall with laminate flooring, radiator, understairs cupboard.
BEDROOM NO. 1 (front) 5.16m (16' 11")into bay x 4.27m (14' 0")
Adam style fireplace surround, fitted carpet, radiator, ceiling coving, upvc double glazed bay window.
BEDROOM NO. 2 (rear) 3.46m (11' 4") x 2.71m (8' 11")
Fitted carpet, radiator, upvc double glazed window.
LOUNGE (rear) 4.63m (15' 2") x 3.58m (11' 9")
Wooden fireplace surround with electric fire, laminate flooring, radiator, upvc double glazed window, alcove cupboard.
KITCHEN 4.27m (14' 0") x 1.97m (6' 6")
Fitted wall/floor units, single drainer stainless steel sink unit, plumbing for washer, radiator, gas cooker point, part tiled walls, laminate flooring, cupboard with Main gas combination central heating boiler, upvc double glazed window, upvc double glazed back door.
BATHROOM/W.C. 3.08m (10' 1") x 1.49m (4' 11")
Panelled bath with overhead electric instant hot water shower, pedestal wash hand basin, low level w.c., radiator, laminate flooring, part tiled walls, upvc double glazed window.
EXTERIOR
The property has a separated rear yard.
Reference: ANM1002023
Disclaimer
These particulars are intended to give a fair description of the property but their accuracy cannot be guaranteed, and they do not constitute an offer of contract. Intending purchasers must rely on their own inspection of the property. None of the above appliances/services have been tested by ourselves. We recommend purchasers arrange for a qualified person to check all appliances/services before legal commitment.
Contact Andrew McLean Estate Agents for more details
Share via social media


